Pôle Alimentaire de DOUAI

Cuisine Centrale et légumerie

Le programme

Construction d’une Cuisine Centrale et d’une légumerie

Type de réalisation : ,

Localisation : Rue du pont de la Deûle

Maitrise d'ouvrage : Ville de DOUAI

Equipe : TiM* architecture + PLATO + VERDI Ingénierie + Paysage&Territoire

Surface : 1650m² SU

Budget : 5 500 000.00€HT

Phases : Concours 2024

À propos

UN SITE / DES ORIENTATIONS
Le site, coincé entre la voie de chemin de fer et la rue du pont de la Deûle, propose un certain nombre de contraintes spatiales : à l’ouest la voie de chemin de fer, à l’est la rue du pont de la Deûle, au nord un pignon d’habitation en R+1+comble et au sud une zone d’habitation en instance de démolition. Le tissu urbain de la zone n’est pas tenu et n’offre que peu d’accroches urbaines sur lesquelles s’appuyer pour positionner le projet. Dès lors, nous avons décidé d’axer l’implantation et l’organisation des bâtiments sur 3 grands principes :
– offrir à la ville un équipement qui s’ouvre sur son quartier ;
– créer des intériorités permettant d’ouvrir largement les façades sur des espaces paysagers maîtrisés ;
– disposer les aires de manœuvre et de stationnement des camions à l’écart de la vue des riverains côté voie de chemin de fer.

DE LA GRAINE A L’ASSIETTE: L’EDUCATION AU GOUT ET AU BIEN MANGER
Le projet se déploie comme un parcours de découverte, du pollinisateur à l’assiette. Depuis leur arrivée dans les jardins, jusqu’à la découverte du pôle alimentaire, les visiteurs découvrent toutes les étapes de la fabrication des repas.
L’objectif est de replacer la production alimentaire dans la chaine de l’agriculture vivrière dont elle découle et plus globalement dans la nature dont elle dépend :
– La mare / Découvrir, …
– Le verger / Faire pousser, Produire
– La légumerie / Nettoyer, éplucher, couper, émincer, râper
– La cuisine / transformer, cuire, refroidir, conditionner,
– Le restaurant / Goûter, manger….
Le projet met l’accent sur le rôle éducatif de la cuisine centrale, dans l’apprentissage des bonnes habitudes alimentaires, dans la formation au goût et surtout le plaisir de manger et prendre en compte, dans son implantation, des animations qui pourront être proposées à tous pour découvrir cette cuisine, partager ou participer à des ateliers.

T103_ESQ.10 Perspective Aerienne
T103_ESQ.12.1 Frange Pedagogique
T103_ESQ.12.6 Frange Pedagogique
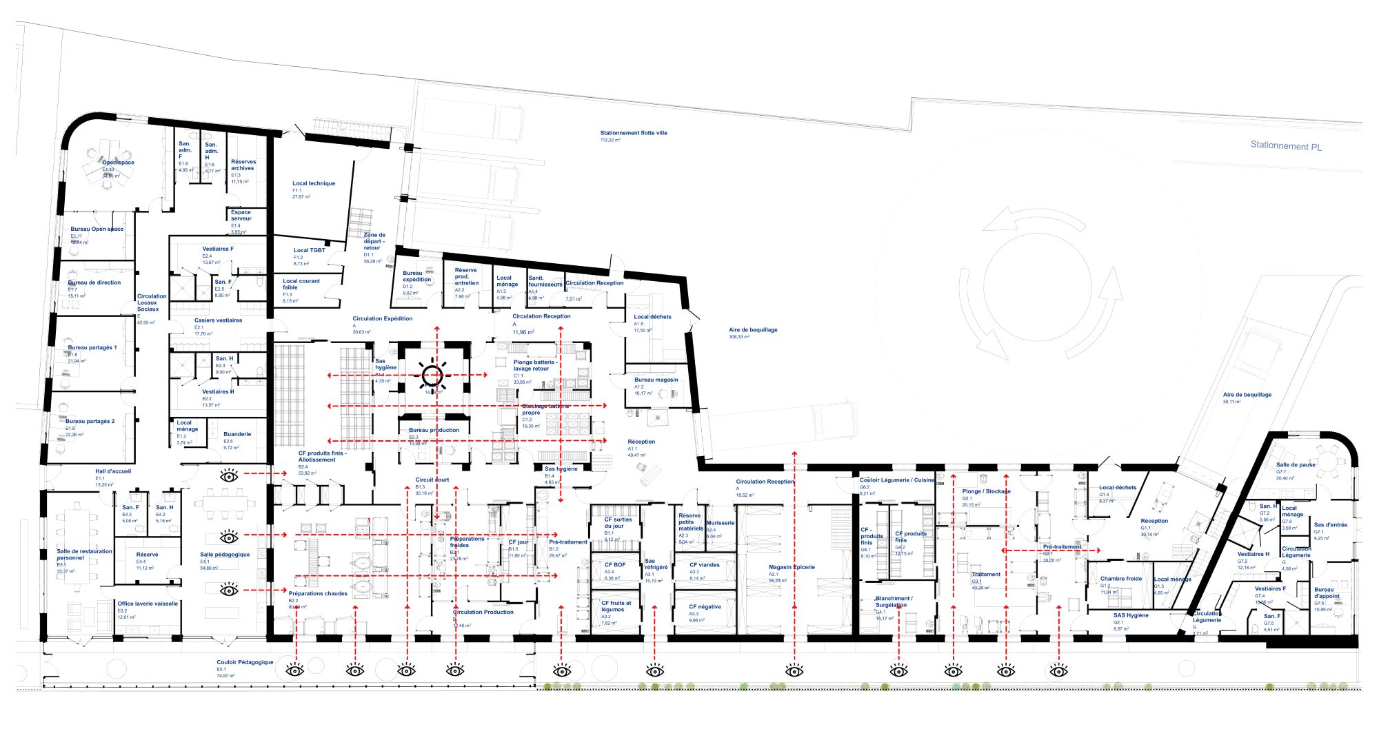
T103_Plan

TiM architecture - tous droits réservés