Pôle Santé et Famille

Transformation d'un ancien dispensaire

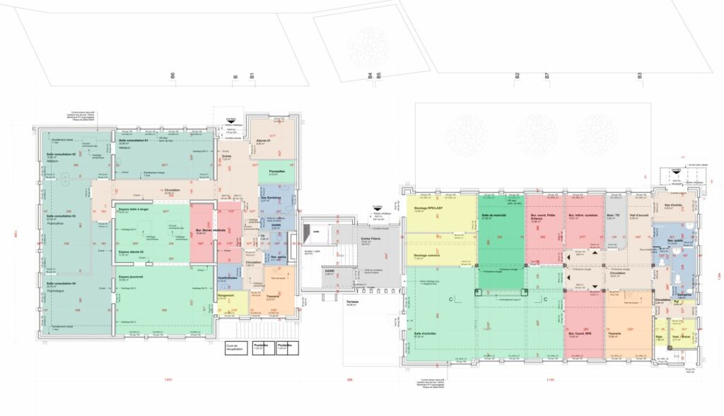
Le programme

Réhabiliation de l'actuel dispensaire en Pôle Santé et famille

Localisation : Rue Jules Domisse à Aniche

Maitrise d'ouvrage : Ville de ANICHE

Equipe : TiM* architecture + SIRETEC Ingénierie + LESLIE Acoustique

Surface : 760m²

Budget : 1 387 000.00€HT

Phases : Livraison janvier 2026

À propos

L’opération consiste en la réhabilitation de l’actuel dispensaire situé rue Jules Domisse en un Pôle Santé et Famille.

Les principaux enjeux à mener sont :
• La réhabilitation énergétique de l’équipement
• La restructuration permettant un fonctionnement optimal de l’équipement
• L’identification et l’appropriation de l’équipement auprès des usagers

La maison de santé sera divisée en trois entités fonctionnellement distinctes:

• Une aile du rez-de-chaussée dédiée aux activités de la commune et de ses partenaires. (Relais Petite Enfance (RPE), Lieu d’Accueil Enfants Parents (LAEP), Centre d’Action Médico-Sociale Précoce (CAMSP))

• Une aile du rez-de-chaussée dédiée aux activités départementales (Le Service Prévention Santé du Nord (SPS), Maison Nord Solidarité (MNS))

• Le R+1 dédié aux activités de l’acteur privé Filiéris (Lieu de santé prodiguant plusieurs soins de santé courants.)

Caractéristiques principales:
Isolation biosourcée, panneaux photovoltaïques, ventilation double flux, pompe à chaleur.

TiM architecture - tous droits réservés