Maison Olivier

Transformation de la Maison Olivier en bibliothèque municipale

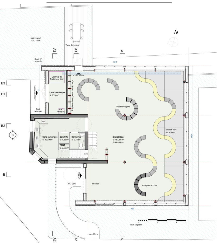
Le programme

Transformation de la Maison Olivier en bibliothèque municipale

Type de réalisation : ,

Localisation : Rue d'Ennetières

Maitrise d'ouvrage : Ville de Capinghem

Equipe : TiM* architecture + SIRETEC Ingénierie

Surface : 200m²

Budget : 620 000.00€HT

Phases : Concours

À propos

La Maison Olivier s’élève en cœur de village à proximité immédiate des principaux équipements de la commune, écoles, garderie, salle de sport, salle polyvalente. Son style Flamand se caractérise par une écriture élancée, verticale de briques, briques vernissées et pierres. Elle est un élément remarquable et identifiable du paysage communal.
L’implantation de la nouvelle bibliothèque doit permettre la constitution d’une identité forte et la valorisation du patrimoine existant. L’extension projetée sera, par son écriture et son implantation, le lien architectural et urbain entre la Maison Olivier et les équipements à proximité.
Nous avons fait le choix d’une architecture sobre et à l’échelle du site.
Horizontale, cherchant à relier, laissant la verticale de l’existant signaler le lieu, l’extension s’accroche à la maison Olivier débarrassée de ses appendices. Elle est constituée par un volume à la géométrie simple qui s’ouvre sur le city stade et le cœur du site. Le travail en couches horizontales superposées pleines ou vitrées compose un ensemble homogène et sobre qui met en lumière les riches modénatures des façades de la Maison Olivier.
Le volume est simple et bas pour ne pas entrer en concurrence avec l’existant dont les qualités patrimoniales sont avérées. Il dialogue simplement avec le bâtiment existant qui possède un caractère affirmé. Le principe est d’éviter tout mimétisme architectural et de proposer un ensemble cohérent avec une transversalité d’usage.
Ouverte sur ses trois faces principales, la bibliothèque rayonne sur son environnement et offre de nouvelles transparences.
… une architecture simple, au service de la fonction et ambitieuse sur le plan écologique …
L’extension est construite en bois, composée de poteaux, poutres et murs ossature bois. L’utilisation de bois locaux sera privilégiée.
Posée sur un soubassement minéral, une première strate horizontale de larges châssis en bois apporte lumière et transparence au cœur de la bibliothèque. La couche supérieure opaque se pare de tuiles de terre cuite blanches. L’isolation de ces murs périphériques est en paille, ils reçoivent sur leur face intérieure un enduit de terre crue. La toiture monopente est isolée en ouate de cellulose et surmontée d’une couverture végétale.

T105_ESQ01
TiM_09_VueExt_01
TiM_11_VueInt_01

TiM architecture - tous droits réservés